











Auslober
SMNG Projektentwicklungs GmbH
Architektur
F+P ARCHITEKTEN ZT GMBH
Wohnnutzfläche: 5.640 m²
Anzahl der Wohnungen: 99
Wettbewerb Wohnbau Schumanngasse
1180
Wien,
Schumanngasse 31-35,
Österreich
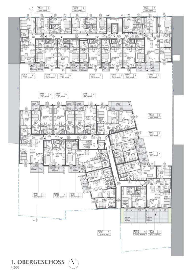
In der Schumanngasse wird ein 6-geschossiges Straßengebäude (Stiege 1) und ein 5-geschossiges Gartengebäude (Stiege 2) mit insgesamt 99 Wohneinheiten entstehen.
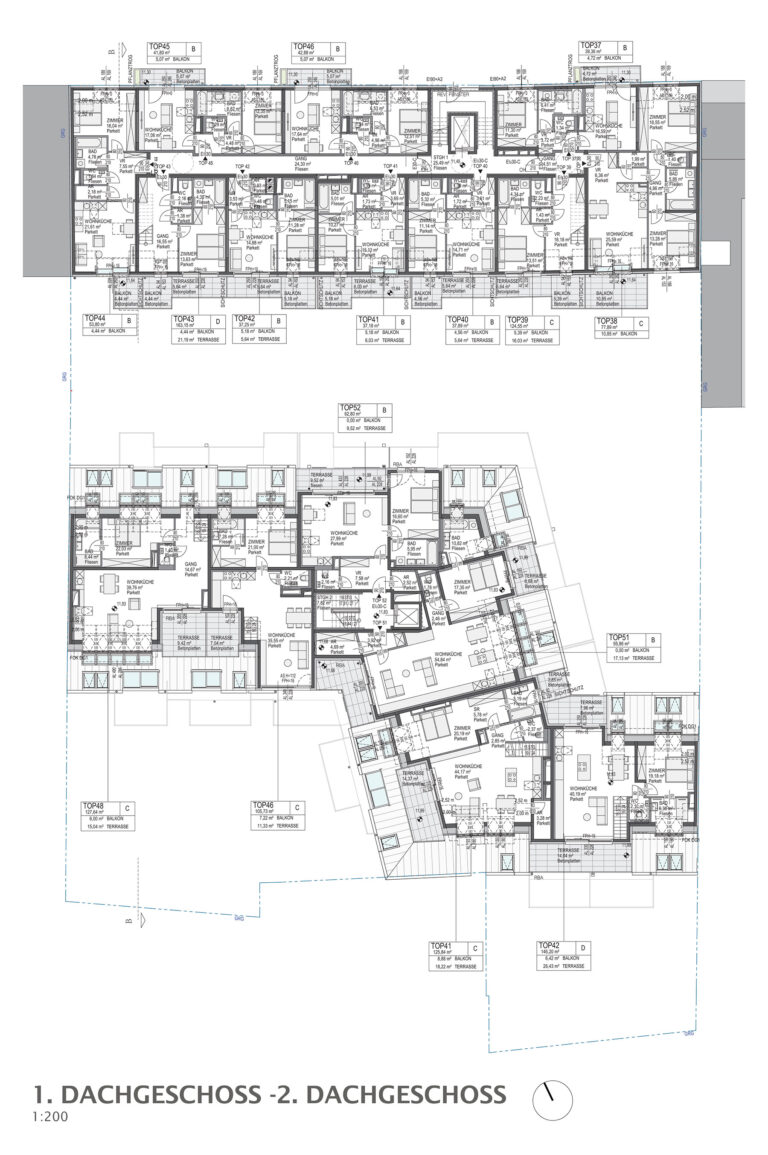
Die einladende, zentrale Zugangssituation wird den gehobenen Standard des Wohnquartiers gerecht. Kompakte Wohnungen, mit Freibereichen in Form von Balkonen oder Terrassen, folgen in den Obergeschossen. Die Dachgeschosse sind großzügigen Geschoss- und Maisonettwohnungen mit Fernblick vorbehalten.
Im Untergeschoss des Straßentraktes ergeben sich durch die Absenkung des Freibereiches südseitige Wohnungen. Zusätzliche Wohnflächen sind im Hofniveau des Straßentraktes angeordnet. Das Gartengebäude ermöglicht qualitativ hochwertige, gewerblich genutzte Gartenappartements im Erdgeschoss.
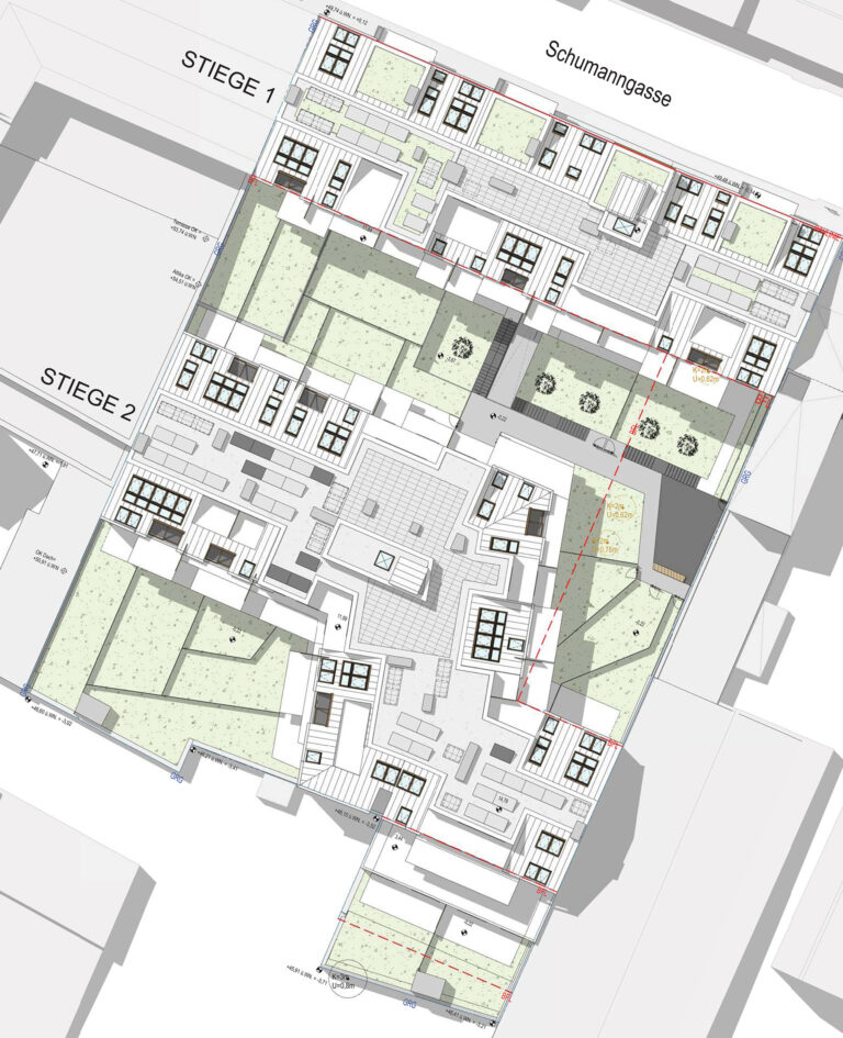
Die z-förmige Konfiguration des Gartentraktes reagiert auf die Widmungen und ermöglicht großzüge Fernblicke in den oberen Geschossen… Zwischen den beiden Bauteilen ist der Kleinkinderspielplatz angeordnet, von den Wohnungen gut erreich- und einsehbar.
Durch ein wirtschaftliches Traggerüst und wenig tiefe Grundrisse kann ein differenzierter Wohnungsmix angeboten werden.
